彈性座封偏心旋塞閥是本司引進國際最新的設計理念和工藝技術,自行研發生產的新型旋塞閥。彈性座封偏心旋塞閥的彈性座封結構,克服了傳統旋塞閥密封性能差且易銹蝕的缺陷,獨具的編心密封設計,較傳統旋塞閥大大降低了操作扭矩,且最大限度地減少了密封面的磨損,延長了閥門使用壽命。矩形直通流產,水頭損失小,流量調節線性佳。其優異的密封性和耐蝕性、理想的操作性能和長久的使用壽命,彈性座封偏心旋塞閥適用于城市污水、工業污水、泥漿及清水等工作環境,作為截流或調節裝置使用。
當前水力控制閥被廣泛用于石油化工、化工、煤氣、天然氣、液化石油氣、暖通行業以及一般工業中。

| 閥體、閥蓋、壓蓋 | 旋塞 | 閥座 | 軸承 | V型密封圈 |
|---|---|---|---|---|
| 球墨鑄鐵 | 球墨鑄鐵外包NBR或EPOM | 純鎳、不銹鋼或特種材料 | 青銅或黃銅 | NBR |

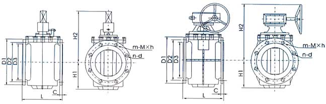
| DN | D1 | D2 | D3 | C | n-d | m-M×n | L | H1 | H2 | ||||
|---|---|---|---|---|---|---|---|---|---|---|---|---|---|
| PLVL型 | PLVS型 | PLVG型 | PLVE型 | PLVP型 | |||||||||
| 50 | 165 | 125 | 99 | 19 | 4-Φ19 | - | 178 | 84 | 143 | 225 | 265 | 315 | 265 |
| 65 | 185 | 145 | 118 | 19 | 4-Φ19 | - | 190 | 93 | 143 | 225 | 265 | 315 | 265 |
| 80 | 200 | 160 | 132 | 19 | 4-Φ19 | 4-M16通孔 | 203 | 109 | 174 | 225 | 312 | 373 | 340 |
| 100 | 220 | 180 | 156 | 19 | 8-Φ19 | - | 229 | 128 | 174 | 225 | 312 | 373 | 340 |
| 125 | 250 | 210 | 184 | 19 | 8-Φ19 | - | 254 | 128 | 174 | 225 | 312 | 373 | 340 |
| 150 | 285 | 240 | 211 | 21 | 4-Φ23 | 4-M20 通孔 | 267 | 165 | - | - | 444 | 481 | 488 |
| 200 | 340 | 295 | 266 | 21 | 4-Φ23 | 4-M20 通孔 | 292 | 198 | - | - | 464 | 508 | 558 |
| 250 | 395 | 350 | 319 | 24 | 8-Φ23 | 4-M20深30 | 330 | 249 | - | - | 527 | 630 | 729 |
| 300 | 445 | 400 | 370 | 25 | 8-Φ23 | 4-M20深30 | 356 | 290 | - | - | 710 | 666 | 798 |
| 350 | 505 | 460 | 429 | 26 | 12-Φ23 | 4-M20深30 | 432 | 330 | - | - | 723 | 767 | - |
| 400 | 565 | 515 | 480 | 28 | 12-Φ29 | 4-M24深36 | 450 | 355 | - | - | 749 | 881 | - |
| 450 | 615 | 565 | 530 | 28 | 16-Φ28 | 4-M24深36 | 450 | 355 | - | - | 749 | 881 | - |
| 500 | 670 | 620 | 582 | 29 | 12-Φ28 | 8-M24深36 | 660 | 427 | - | - | 903 | 1015 | - |
| 600 | 780 | 725 | 682 | 30 | 12-Φ31 | 8-M27深40 | 762 | 567 | - | - | 1015 | 1202 | - |
| 700 | 895 | 840 | 794 | 32.5 | 16-Φ31 | 8-M27深40 | 865 | 633 | - | - | 1393 | 1351 | - |
| 800 | 1015 | 950 | 901 | 35 | 16-Φ34 | 8-M30深45 | 965 | 633 | - | - | 1393 | 1351 | - |
主營產品:氣動調節閥 - 電動調節閥 - 自力式調節閥
版版權所有 © 上海大田閥門管道工程有限公司
地址:上海市浦東新區川宏路528號宏圖大樓5樓
